• Home
  • Exhibit
  • Retail
  • Graphic
  • Illustration
  • About
  • Contact

Victoria Robinson

  • Home
  • Exhibit
  • Retail
  • Graphic
  • Illustration
  • About
  • Contact

Gopuff Store Design

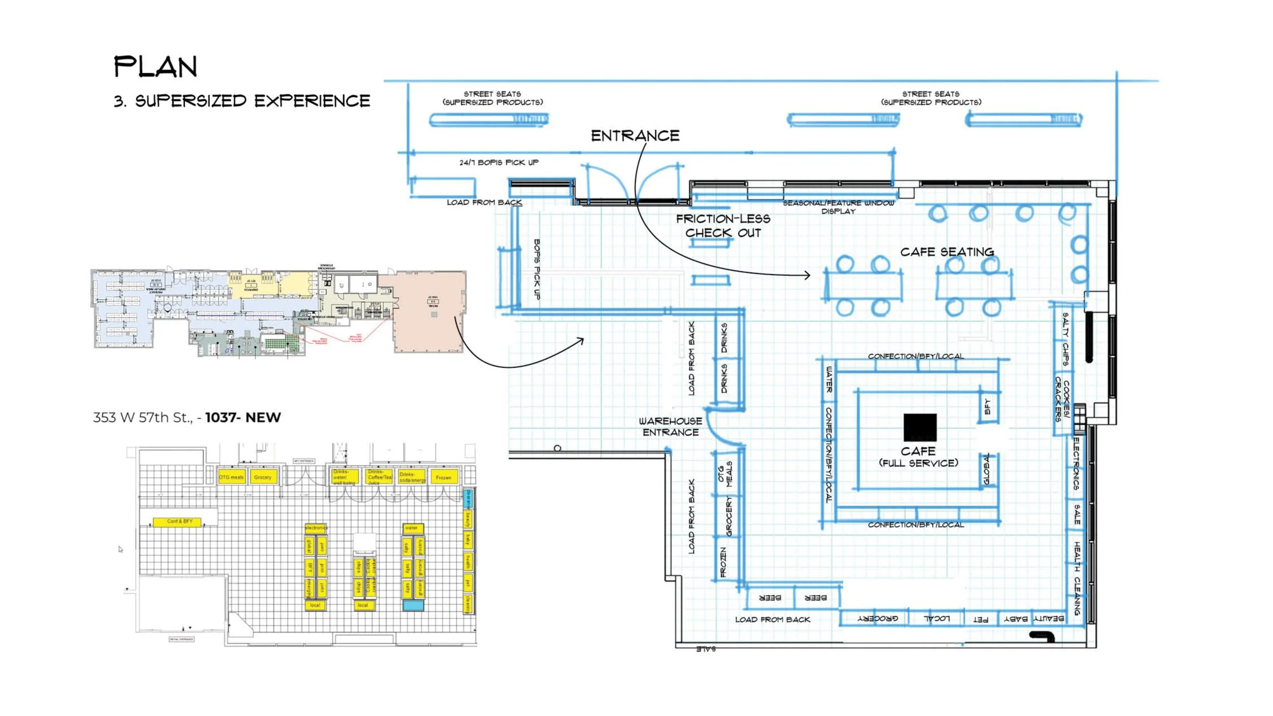
Articulated a vision and design for Gopuff that has an online delivery app and wanted to activate the brand in a retail environment and drive more people to the app. Collaborated with a design team as the 3D designer to gather inspiration and develop three concepts before ultimately refining into one final concept design.

22.02.09 - Gopuff Store Activation_Page_08.jpg
22.02.09 - Gopuff Store Activation_Page_10.jpg
22.02.09 - Gopuff Store Activation_Page_11.jpg
22.02.09 - Gopuff Store Activation_Page_12.jpg
22.02.09 - Gopuff Store Activation_Page_13.jpg
22.02.09 - Gopuff Store Activation_Page_14.jpg
22.02.09 - Gopuff Store Activation_Page_15.jpg
22.02.09 - Gopuff Store Activation_Page_17.jpg
22.02.09 - Gopuff Store Activation_Page_18.jpg
22.02.09 - Gopuff Store Activation_Page_19.jpg
22.02.09 - Gopuff Store Activation_Page_20.jpg
22.02.09 - Gopuff Store Activation_Page_21.jpg
22.02.09 - Gopuff Store Activation_Page_22.jpg
22.02.09 - Gopuff Store Activation_Page_24.jpg
22.02.09 - Gopuff Store Activation_Page_25.jpg
22.02.09 - Gopuff Store Activation_Page_26.jpg
22.02.09 - Gopuff Store Activation_Page_27.jpg
22.02.09 - Gopuff Store Activation_Page_28.jpg
22.02.09 - Gopuff Store Activation_Page_29.jpg
22.03.16 Gopuff Phase 5 Concept Application_Page_07.jpg
22.03.16 Gopuff Phase 5 Concept Application_Page_05.jpg
22.03.16 Gopuff Phase 5 Concept Application_Page_08.jpg
22.03.16 Gopuff Phase 5 Concept Application_Page_09.jpg
22.03.16 Gopuff Phase 5 Concept Application_Page_10.jpg
22.03.16 Gopuff Phase 5 Concept Application_Page_11.jpg
22.03.16 Gopuff Phase 5 Concept Application_Page_12.jpg
22.03.16 Gopuff Phase 5 Concept Application_Page_13.jpg
22.03.16 Gopuff Phase 5 Concept Application_Page_14.jpg
22.03.16 Gopuff Phase 5 Concept Application_Page_15.jpg
22.03.16 Gopuff Phase 5 Concept Application_Page_16.jpg
22.03.16 Gopuff Phase 5 Concept Application_Page_17.jpg
22.03.16 Gopuff Phase 5 Concept Application_Page_18.jpg
22.03.16 Gopuff Phase 5 Concept Application_Page_19.jpg
22.03.16 Gopuff Phase 5 Concept Application_Page_20.jpg
22.03.16 Gopuff Phase 5 Concept Application_Page_21.jpg

Powered by Squarespace.